Overview
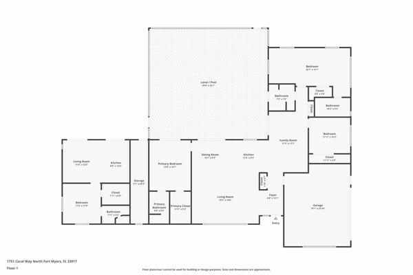
Tucked away on the serene backwaters of the Caloosahatchee River, surrounded by oxbows and mangrove passageways, this .62-acre waterfront retreat offers an unparalleled blend of tranquility, adventure, natural beauty and modern luxury. With 271 feet of seawall (2006) and a 400 sq. ft. boat dock, this rare property is a dream for boaters, nature lovers and outdoor enthusiasts alike. Whether kayaking through calm waters, fishing off the dock or setting out for the Gulf of Mexico, this home provides the perfect gateway to Southwest Floridas natural beauty. Designed for versatility, this beautifully updated home features a unique layout with two master suites and guest bedroom in the main house, plus a separate guest cabana with its own private entrance, kitchenette, living area and en-suite bedroomideal for visitors, a home office, generational living or a short-term rental (VRBO) opportunity. Inside, the spacious great room opens to a stunning, newly renovated kitchen with soft-close shaker style cabinets wood cabinets with quality dove tail construction. The counters and freestanding island is adorned with luxurious granite. A separate family room offers additional living space, while the guest bath conveniently doubles as a pool bath. All bathrooms have been tastefully updated with high-end finishes. Between the main house and guest cabana, an expansive storage room provides ample space for outdoor gear and pool toys. This home is built for both comfort and durability, featuring a metal roof, impact-resistant glass windows and sliders, luxury vinyl plank flooring, a new electric panel (2023), a new water heater (2023) and a camera security system. Outside, the large, under-truss, pavered lanai offers shaded space to take in the breathtaking waterfront views, while the sparkling swimming pool, enclosed in a mansard pool cage with a brand-new pool pump, is perfect for relaxation. The oversized side-loading garage (488 sq. ft.) and expansive driveway provide plenty of space for a motorhome, boat trailer or extra vehicles. This is an ideal lot for potentially adding on to the home in the future if desired. YACHT CLUB COLONY is North Fort Myers BEST KEPT SECRET! This friendly community offers a unique blend of old Florida waterfront living, community charm and natural beauty. Nestled along the Caloosahatchee River, this serene neighborhood is a haven for boating enthusiasts, with many homes featuring direct canal or river access, ideal for fishing, sailing, kayaking and easy excursions to open waters. Yacht Club Colony is also one of the very few boat and RV-friendly communities. The HOA is voluntary and offers residents access to a 7-acre private park, a Gulf-access community boat ramp, scenic nature trails, a picnic pavilion and fish-cleaning stationall for an optional low HOA fee of just $200 per year. This one-of-a-kind property offers a blend of luxury, waterfront adventure, and peaceful seclusion, making it the ultimate Florida retreat.