Overview
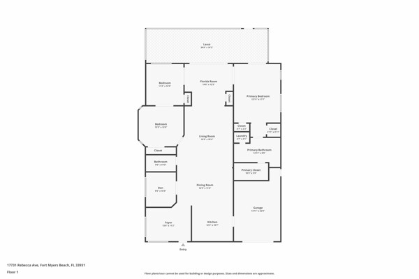
COASTAL LIVING MEETS SMART INVESTING! An abundance of elegance, a splash of potential, and a location that does the talking You wont believe how close this OPPORTUNITY gets you to Fort Myers Beachat a price thats almost TOO GOOD TO BE TRUE! Located on a wide 100 sailboat-access, saltwater canal, this waterfront gem is just minutes from the back bay waters of Fort Myers Beach by boat or car. Whether dreaming of sandy toes or sunset cruises, this address delivers BIG on LIFESTYLE without the luxury price tag. Enjoy early 1, 800 square feet of smartly designed living spaceno wasted area here! Youll find three bedrooms, two stylishly renovated bathrooms, a versatile den and a one-car garage. The seller has already invested in high-end upgrades and finishes, leaving just a little more to finishand weve got a solid quote under $20K to wrap it all up (attached to MLS). Your GOLDEN OPPORTUNITY. Step into a show-stopping kitchen thats as functional as it is fabulous. Were talking soft-close shaker cabinets, luxurious Quartz counters, pull-out spice racks and drawers, wine cooler, trash roll-out, pop-up charging station and a gourmet sink with built-in strainer. Add in a top-of-the-line appliance package featuring a four-door fridge, steam bake oven, convection features, and a high-tech microwave and youre cooking with style. The bathrooms are equally impressiveespecially the guest bath, where a wall of granite doubles as a piece of art. Throughout the home, youll find thoughtful recessed lighting, all tile flooring, premium finishes and updates that matter: dimensional shingle roof (2023), HVAC (2023), updated electrica (2023), fresh paint inside and out and impact glass windows and doors for peace of mind. Pocketing sliders from the great room lead to your expansive lanai, the perfect spot to add a jacuzzi and unwind and take in the waterfront view. And yesthe oversized composite dock is already in place, ready for your boat, your fishing pole, or your morning coffee. Your dock isnt just a place to tie up a boatits your front-row seat to natures daily performance, featuring playful dolphins, curious manatees, acrobatic fish and a vibrant cast of coastal birds. They all LOVE TO PLAY at the beach too! RV? Boat? Trailer? Bring them allthis part of Lee County is boat and RV friendly, so bring your toys. With an oversized circle driveway, RV pad and 30 AMP hook up theres plenty of room for it all. The seller has transferrable flood insurance if desired. Affordable Gulf-access living this close to Fort Myers Beach? You better believe it! Come see what smart investingand a little sweat equitycan do for your future. Here, youll discover endless possibilitieswhether youre seeking a full-time residence, a winter escape or the perfect vacation rental investment. Southwest Floridas best locationjust minutes from world-class beaches and dining, renowned fishing destinations and the convenience of Southwest Florida International Airport.