Overview
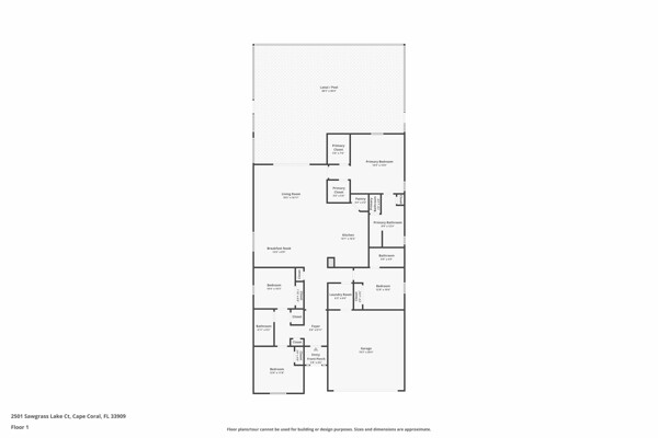
Vibrant and full of life-this home is a reflection of the joyful energy its owner brought to every room. Located in the gated community of Coral Lakes, this residence is in like-new condition and shows true pride of ownership. Built by Lennar, the popular Trevi model is a favorite floorplan for its four spacious bedrooms-including two en-suite bedrooms-and a wide-open great room layout designed for everyday living and entertaining. Many thoughtful updates have been made in the short time this owner has lived here, including all new kitchen appliances, a farmhouse sink with a pot filler faucet, custom backsplash and built-in wine rack. The laundry room also features newer appliances. Throughout the home, you'll find updated light fixtures, ceiling fans and fresh interior and exterior paint. The guest bathroom was tastefully updated in 2024, adding to the home's move-in-ready appeal. Other great features include a large kitchen prep island, walk-in pantry and an abundance of cabinet storage. The biggest investment? A brand new custom saltwater pool, completed less than a year ago. This showstopper includes a sunshelf with bubbler, an electric pool heater and a generous 5'9" depth at the deep end-perfect for cooling off, relaxing, or entertaining in style. Built with solid concrete block construction, a tile roof, and hurricane shutters, this home is storm season ready and built to last! BONUS, this home is NOT located in a flood zone and experienced no flooding during any hurricanes. This desirable lot is tucked away near the end of a quiet cul-de-sac and backs up to a serene private preserve. The preserve area is owned and maintained by the Coral Lakes HOA-offering peaceful views and added privacy with no neighbors behind you. This great location is an EASY walk to the resort style clubhouse and amenity center. Coral Lakes is a gated, well-maintained, resort-style community where neighbors stroll past colorful landscaping and sparkling lakes. Amenities include a clubhouse, fitness center, resort style pool and spa, volleyball, tennis, pickleball and basketball courts-something for everyone! The clubhouse is perfect for hosting parties and events and includes a kitchen area as well. Very low HOA fees of $288/month include lawn care, yard trimming and exterior pest control. Conveniently located near shops, schools and restaurants, this is an up and coming area of Cape Coral. Minutes to big box stores for all your home improvement projects too! Cape Coral is consistently touted as the best place to work, to retire, for safety and so much more! With 400 miles of canals we are a top boating and fishing destination too! You are always minutes away from world famous beaches, island hopping, and RSW international airport. Easy day trips to Disney, Busch Gardens, Florida Keys and so many destinations we are blessed to have near by! If you're looking for a home that stands out from the ordinary, this one is ready to welcome you with warmth and personality.